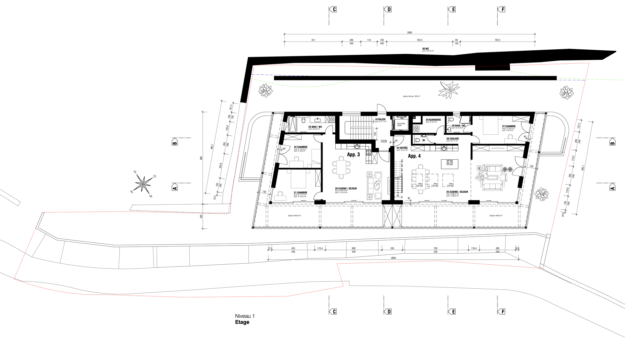
Immeuble Les Vignes

Nous avons conçu un immeuble de quatre appartements à l’orée du vignoble. Des terrasses surdimensionnées permettent une vie extérieure agréable, même sur ces coteaux escarpés. Le projet est actuellement disponible à la vente.

Année2023LocalisationLes Evouettes, SwitzerlandClientV&A PropertiesServicesArchitecture